Objektart
Adresse
Objektdaten
Informationen
Ausstattung
Details
Willkommen zur Vorstellung unseres attraktiven Bürogebäudes in der Neuburger Straße!
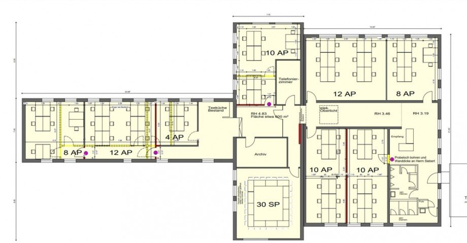
Diese Büroeinheit bietet alles, was Sie für eine angenehme und produktive Arbeitsumgebung benötigen. Mit hohen Decken und großen Fenstern, die einen atemberaubenden Blick auf Kachlet und Donau bieten, werden Sie sich sofort wohl und inspiriert fühlen.
Das Büro verfügt über einen separaten Zugang, der Ihnen maximale Privatsphäre und Sicherheit bietet. Sie betreten ein geräumiges und einladendes Foyer, das sich perfekt für Empfang und Wartebereich eignet.
Eine Teeküche und getrennte Toiletten stehen ebenfalls zur Verfügung, um Ihnen den Komfort zu bieten, den Sie benötigen, um effektiv arbeiten zu können.
Die Büroeinheit ist mit modernster EDV-Verkabelung ausgestattet, damit Sie problemlos und schnell online gehen können. Darüber hinaus sind die Räumlichkeiten hell und bieten genügend Platz für eine optimale Nutzung.
Eine Bushaltestelle direkt vor dem Gebäude sowie ausreichend Parkflächen in unmittelbarer Nähe bieten Ihnen eine hervorragende Erreichbarkeit, damit Sie sich voll auf Ihre Arbeit konzentrieren können.
Dieses Bürogebäude ist die perfekte Wahl für Unternehmen, die auf der Suche nach einer attraktiven, funktionalen und gut gelegenen Büroeinheit sind. Kontaktieren Sie uns noch heute, um eine Besichtigung zu vereinbaren und lassen Sie sich von diesem besonderen Objekt überzeugen!
- nach Vereinbarung mit dem Vermieter
- helle, charmante Räume
- kostenlose Parkplätze für Kunden
- teilweise mit Alarmanlage
- LAN-Verkabelung
Stellplatz: Kann gemietet werden
- sehr gute ÖPNV-Anbindung
- sehr gute Anbindung an die Autobahn
- beliebte Stadtteillage
- lebendiges Umfeld mit Einkaufsmöglichkeiten Gastronomie etc.
Passau ist eine Universitätsstadt in Niederbayern. Die Dreiflüssestadt liegt an der Grenze zu Österreich und ist mit rund 53.000 Einwohnern nach Landshut die zweitgrößte Stadt des Regierungsbezirks.
In Passau sind Sie mit Ärzten, einem Krankenhaus, Banken, Schulen, Kindergärten, Spielplätzen, Einkaufsmöglichkeiten und Apotheken bestens versorgt. Ebenso verfügt die Stadt über eine hervorragende Infrastruktur, wodurch auch die anderen Stadtteile wie Grubweg, Innstadt, Haidenhof, Hacklberg und Hals problemlos zu erreichen sind.
In fast jedem Stadtteil ist eine eigene Grundschule vorhanden und alle weiterführenden Schulen sind im Stadtzentrum vorzufinden.
Das Angebot an Sport- und Freizeitangeboten ist groß. Die nahegelegenen Wälder und Badeseen bieten an Wochenenden tolle Ausflugsmöglichkeiten.
Die malerische Altstadt ist für ihre barocken Gebäude bekannt, darunter den Stephansdom mit seinen charakteristischen Zwiebeltürmen und der berühmten Domorgel.
Die bischöfliche Residenz und die Burganlage Feste Oberhaus machen den besonderen Reiz von Passau aus.
In der Innenstadt finden sich viele schöne Lokale und gemütliche Cafès.
** Die hier eingestellten Angaben sind mit größter Sorgfalt recherchiert, erheben jedoch nicht den Anspruch auf Alleingültigkeit und werden lediglich unverbindlich zu Informationszwecken zur Verfügung gestellt.
Alle Angaben sind ohne Gewähr und basieren ausschließlich auf Informationen, die uns von unserem Auftraggeber zur Verfügung gestellt wurden. Wir übernehmen keine Gewähr für die Vollständigkeit, Richtigkeit und Aktualität dieser Angaben.
Aus Diskretionsgründen werden hier keine weiteren Angaben zum Objekt und zur Lage gemacht. Ein ausführliches Expose senden wir Ihnen gerne auf eine vollständig ausgefüllte Anfrage.
Die veröffentlichten Bilder sind Eigentum der Hatz und Team Immobilien GmbH und dürfen nicht weiter vervielfältigt oder anderweitig benutzt werden.
BITTE BEACHTEN SIE AUCH UNSERE WEITEREN ANGEBOTE UNTER: www.Hatz-Popp.de
Energieausweis (Verbrauchsausweis)
118 kWh / (m²*a) Energieverbrauchskennwert
118 kWh / (m²*a) Energieverbrauchskennwert
118 kWh / (m²*a) Energieverbrauchskennwert
Weitere Informationen
| Wesentlicher Energieträger | Öl |
| Energieausweis gültig bis | 2013-11-21 |
| Energieausweis Jahrgang | vor 1.5.2014 |
| Energieausweis Baujahr | 1965 |
| Energieausweis Gebäudeart | Gewerbe |
| Heizung | Zentralheizung |
| Befeuerung | Öl |
Ich bin damit einverstanden, dass mir Karten von Google angezeigt werden. Es gelten die Datenschutzbedingungen von Google (https://policies.google.com/privacy).
Ich bin einverstanden