Objektart
Adresse
Objektdaten
Informationen
Ausstattung
Details
Ladenfläche direkt am Bahnhof mit Sichtlage und guter Passantenfrequenz.
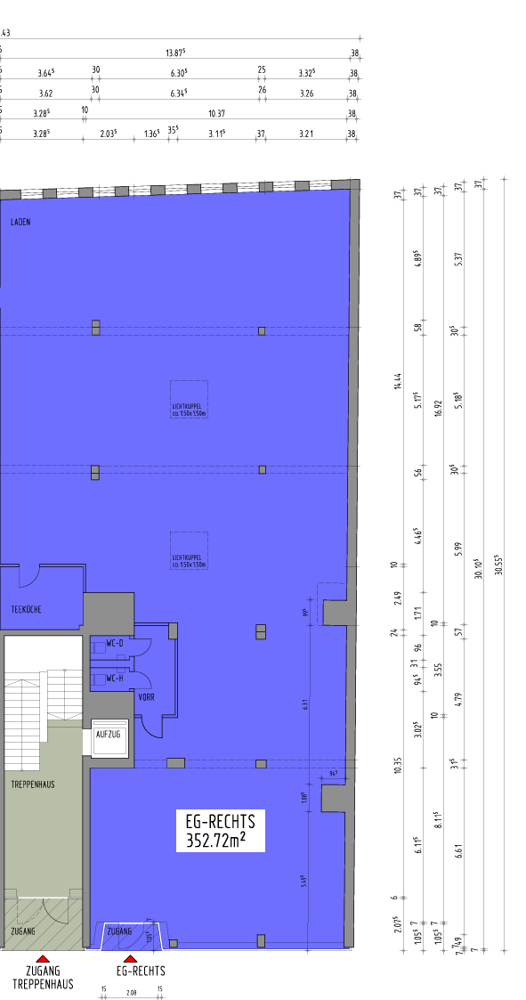
In der Bahnhofstraße Passaus bieten wir eine Ladenfläche mit ca. 353 m² Ladenfläche. Die Ladenfläche befindet sich im Erdgeschoss und ist nicht unterteilt. Neben einem WC gibt es einen Aufenthaltsraum mit einer Teeküche. Außerdem verfügt die Ladenfläche über eine Klimaanlage.
Der Laden hat eine Fensterfront von ca. 7 m und ist in unmittelbarer Umgebung namhafter Einzelhändler wie. z.B. H&M, Müller Drogeriemarkt, sowie des neuen Donauquartiers und viele weitere Einzelhändler angesiedelt.
Der zentrale Omnibusbahnhof, sowie der Hauptbahnhof befinden sich in unmittelbarer Entfernung.
In der hauseigenen Tiefgarage gibt es zwei freie Stellplätze á 60 Euro.
- sehr gepflegtes Objekt
- abgehängte Decke
- Fliesenboden
- Toilette
- Stellplätze in der Tiefgarage
- wirtschaftliche, lichtdurchflutete Mietfläche
- kurzfristiger Bezug
- ausreichende Beleuchtung vorhanden
- verkehrsgünstig in gut frequentierter Innenstadt Lage
- sehr gute ÖPNV-Anbindung ? nähe Donaupassage
- gegenüber dem Hauptbahnhof
- Stadtbushaltestelle vor der Tür
- aureichend Parkplätze vorm Objekt, Parkhäuser in Lauflage
- lebendiges Umfeld mit Einkaufsmöglichkeiten
Passau, die barocke Perle Niederbayerns, liegt malerisch am Zusammenfluss von Donau, Inn und Ilz - direkt an der Grenze zu Österreich. Mit rund 53.000 Einwohnern ist die Stadt nicht nur ein kulturelles und wirtschaftliches Zentrum der Region, sondern auch Universitätsstadt und beliebter Wohnort mit hoher Lebensqualität. Nach Landshut ist Passau die zweitgrößte Stadt im Regierungsbezirk Niederbayern.
Die Stadt bietet eine ausgezeichnete Infrastruktur: Neben einem breiten Angebot an Ärzten, Apotheken, Schulen und Kindergärten finden sich zahlreiche Einkaufsmöglichkeiten, Banken sowie ein modernes Krankenhaus. Die einzelnen Stadtteile - darunter Grubweg, Innstadt, Haidenhof, Hacklberg und Hals - sind durch ein gut ausgebautes Verkehrsnetz optimal miteinander verbunden.
Bildung wird in Passau großgeschrieben: In nahezu jedem Stadtteil gibt es eine Grundschule, alle weiterführenden Schulen sind zentral gelegen und gut erreichbar. Die Universität Passau genießt weit über die Region hinaus einen exzellenten Ruf.
Für Freizeit, Sport und Erholung bietet Passau vielfältige Möglichkeiten. Die umliegenden Wälder, Wanderwege und Badeseen laden zu aktiven Wochenenden in der Natur ein. Ob Radtour entlang der Donau, Spaziergang durch das Ilztal oder Badevergnügen im nahen Rannasee - die Auswahl ist groß.
Besonders hervorzuheben ist die historische Altstadt mit ihren prachtvollen barocken Bauwerken. Der imposante Stephansdom mit der größten Domorgel der Welt, die bischöfliche Residenz und die hoch über der Stadt thronende Veste Oberhaus prägen das unverwechselbare Stadtbild.
Gemütliche Cafés, gehobene Restaurants und eine lebendige Kulturszene sorgen für urbanes Flair und ein abwechslungsreiches Lebensgefühl. Ob für Familien, Studenten oder Investoren - Passau vereint Geschichte, Moderne und Natur auf besonders reizvolle Weise.
** Die hier eingestellten Angaben sind mit größter Sorgfalt recherchiert, erheben jedoch nicht den Anspruch auf Alleingültigkeit und werden lediglich unverbindlich zu Informationszwecken zur Verfügung gestellt.
Alle Angaben sind ohne Gewähr und basieren ausschließlich auf Informationen, die uns von unserem Auftraggeber zur Verfügung gestellt wurden. Wir übernehmen keine Gewähr für die Vollständigkeit, Richtigkeit und Aktualität dieser Angaben.
Aus Diskretionsgründen werden hier keine weiteren Angaben zum Objekt und zur Lage gemacht. Ein ausführliches Exposé senden wir Ihnen gerne auf eine vollständig ausgefüllte Anfrage.
Die veröffentlichten Bilder sind Eigentum der Hatz & Team Immobilien GmbH und dürfen nicht weiter vervielfältigt oder anderweitig benutzt werden.
Zum Zeitpunkt der Erstellung des Exposés lag uns noch kein Energieausweis vor. Der Eigentümer ist jedoch verpflichtet, dem Käufer oder Mietinteressenten diesen bei der Besichtigung vorzulegen und bei Abschluss des Vertrages zu übergeben.
Es ist immer gut, den Marktwert Ihrer Immobilie zu kennen. Haben Sie vom Immobilienboom profitiert?
Bitte beachten Sie auch unsere weiteren Angebote unter: www.hatz-team.de
Ich bin damit einverstanden, dass mir Karten von Google angezeigt werden. Es gelten die Datenschutzbedingungen von Google (https://policies.google.com/privacy).
Ich bin einverstanden