Objektart
Adresse
Objektdaten
Informationen
Ausstattung
Details
Einzigartiges Zins- und Renditeobjekt in Bad Füssing - Investieren Sie in eine wertbeständige Wohnanlage
Willkommen in Bad Füssing - einem der begehrtesten Kurorte Deutschlands, der jährlich zahlreiche Erholungssuchende anzieht. Inmitten dieser idyllischen Umgebung befindet sich eine außergewöhnliche Wohnanlage, die sich als nachhaltiges Investment ideal für Kapitalanleger eignet.
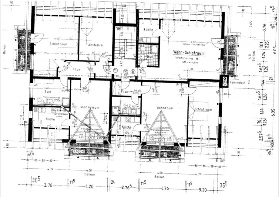
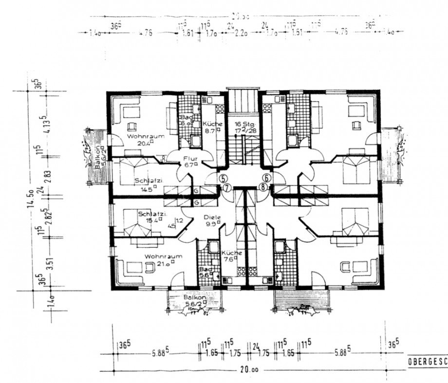
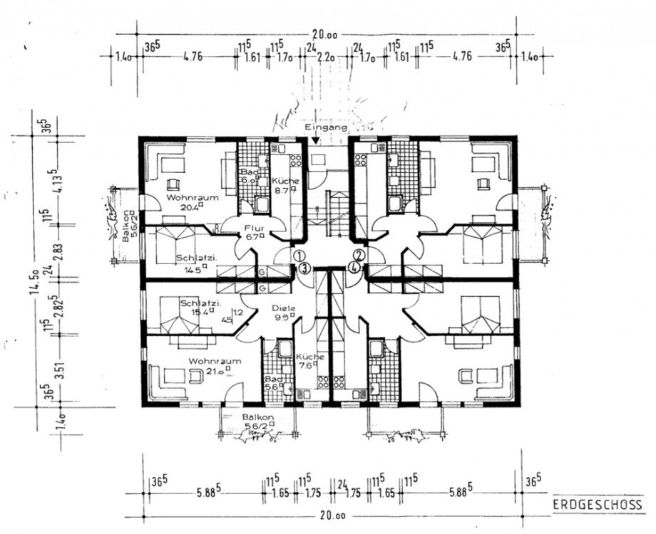
Das charmante Mehrfamilienhaus wurde im Jahr 1994 erbaut und überzeugt mit seiner soliden Bausubstanz sowie einer durchdachten Raumaufteilung. Die Immobilie erstreckt sich über drei Etagen - Erdgeschoss, Obergeschoss und Dachgeschoss - und bietet eine optimale Nutzung des vorhandenen Raums. Auf einem ca. 838 m² großen Grundstück erstreckt sich eine Nutzfläche von ca. 670 m², die auf elf Wohneinheiten mit insgesamt 22 Zimmern verteilt ist. Die Wohnungen bieten großzügige Grundrisse zwischen 47 m² und 91 m² und sprechen sowohl Singles als auch Familien an.
Ein Vollwärmeschutz hilft dem Mieter beim Sparen von Nebenkosten.
2017 bis 2018 neue Kunststofffenster in Holzoptik
Ausstattung & Highlights
traktive Wohnungsgrößen zwischen 47 m² und 91 m²
itlose Architektur mit gepflegtem Wohnambiente
ei Etagen: Erdgeschoss, Obergeschoss und Dachgeschoss
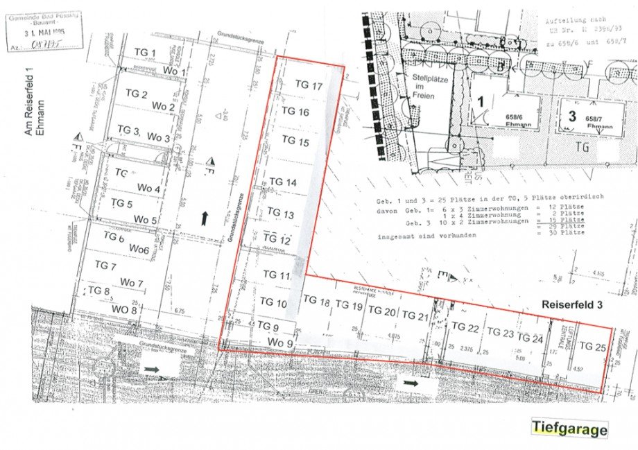
timale Parkmöglichkeiten: 17 Tiefgaragenplätze & 3 Außenstellplätze
ngjährige Mietverhältnisse: Die ältesten Mieter wohnen bereits seit 2002 in der Wohnanlage
eteinnahmen: Monatliche Kaltmiete von ca.: 5240 EUR, jährliche Mieteinnahmen von ca.: 67.000 EUR
elfältige Freizeitmöglichkeiten in unmittelbarer Nähe, darunter mehrere renommierte Golfplätze
tspannung pur: Zahlreiche Thermen und Saunalandschaften in der Umgebung
linarische Vielfalt: Hochwertige Gastronomie direkt vor Ort
chhaltige Renditechancen durch stabile Nachfrage am Standort
exibler Übergabetermin nach individueller Vereinbarung
llwärmeschutz
17 bis 2018 neue Kunststofffenster in Holzoptik (Giebelseite)
Bad Füssing bietet als einer der führenden Kurorte Deutschlands eine hohe Lebensqualität und konstante Nachfrage nach Wohnraum. Diese Wohnanlage stellt somit eine hervorragende Möglichkeit dar, langfristige Erträge zu sichern.
Nutzen Sie diese seltene Gelegenheit und investieren Sie in eine wertbeständige Immobilie mit solidem Ertragspotenzial.
Gerne stehen wir Ihnen für weitere Informationen und eine Besichtigung zur Verfügung!
o Attraktive Wohnungsgrößen zwischen 47 m² und 91 m²
o Drei Etagen: Erdgeschoss, Obergeschoss und Dachgeschoss
o Solide Bausubstanz - Baujahr 1994
o Gesamtfläche: ca. 670 m² Nutzfläche auf einem ca. 838 m² großen Grundstück
o Langjährige Mietverhältnisse: Älteste Mieter seit 2002 im Haus
o Mieteinnahmen: Monatliche Kaltmiete von ca.: 5300 EUR, jährliche Einnahmen 71.270,00 EUR
o Parkmöglichkeiten: 17 Tiefgaragenplätze & 3 Außenstellplätze ca.: 7680,00 EUR
o Erstklassige Lage in Bad Füssing - einer der beliebtesten Kurorte Deutschlands
o Hervorragende Infrastruktur mit Einkaufsmöglichkeiten, Restaurants und Freizeitangeboten
o Nähe zu den besten Thermen der Region: Therme 1, Europa Therme, Johannesbad Therme
o Golfparadies: Mehrere renommierte Golfplätze in unmittelbarer Umgebung
o Optimale Verkehrsanbindung: Autobahn A3, B12, Bahnhof Pocking, Flughäfen München/Linz/Salzburg
o Natur & Freizeit: Malerische Rad- und Wanderwege entlang des Inns und durch das Umland
o Hohe Nachfrage nach Wohnraum - ideal für Kapitalanleger
o Flexibler Übergabetermin nach individueller Vereinbarung
Die Wohnanlage befindet sich in Bad Füssing, einem der bekanntesten und beliebtesten Kurorte Deutschlands. Die Gemeinde liegt im idyllischen Inntal, nahe der österreichischen Grenze und nur etwa 30 Kilometer südwestlich von Passau. Diese bevorzugte Lage verbindet eine ruhige, naturnahe Umgebung mit einer hervorragenden Infrastruktur und exzellenten Freizeitmöglichkeiten.
Kur- und Gesundheitsstandort von Weltruf
Bad Füssing ist berühmt für seine heilenden Thermalquellen, die jedes Jahr zahlreiche Besucher anziehen.
Die drei großen Thermen - Therme 1, Europa Therme und Johannesbad Therme - machen den Ort zu einem Zentrum für Wellness, Erholung und medizinische Therapie. Die hohe Nachfrage nach Wohnraum ist dadurch nachhaltig gesichert.
Die Verkehrsanbindung ist optimal:
to: Über die B12 und A3 ist Bad Füssing schnell aus München, Passau oder Linz erreichbar.
PNV: Ein gut ausgebautes Busnetz verbindet Bad Füssing mit den umliegenden Städten.
hn: Der nächstgelegene Bahnhof ist in Pocking, nur wenige Kilometer entfernt.
ughäfen: Internationale Anbindungen bestehen über die Flughäfen München, Linz und Salzburg.
Neben den erstklassigen Kureinrichtungen bietet Bad Füssing zahlreiche Möglichkeiten für Aktivurlauber:
lfparadies: Mehrere renommierte Golfplätze, darunter der ThermenGolfClub Bad Füssing-Kirchham und dasW ellness & Golf Resort Bad Griesbach, sind in kurzer Zeit erreichbar.
d- und Wanderwege: Die Region bietet malerische Rad- und Wanderwege entlang des Inns und durch das bayerische Umland.
herholung: Naturfreunde genießen die Innauen, die sich perfekt für entspannte Spaziergänge oder Radtouren eignen.
Bad Füssing überzeugt mit einer vielfältigen Gastronomieszene - von traditionell bayerischen Wirtshäusern über gehobene Restaurants bis hin zu internationalen Spezialitäten. Zudem bietet die Gemeinde eine gute Versorgung mit Supermärkten, Geschäften des täglichen Bedarfs und Apotheken.
Als führender Kurort genießt Bad Füssing eine sehr stabile Nachfrage nach Wohnraum - sowohl von Langzeitmietern als auch von Anlegern, die möblierte Wohnungen für Kurgäste und Touristen vermieten. Die Infrastruktur, gepaart mit der wirtschaftlichen Stabilität des Ortes, macht diese Immobilie zu einer zukunftssicheren Kapitalanlage.
** Die hier eingestellten Angaben sind mit größter Sorgfalt recherchiert, erheben jedoch nicht den Anspruch auf Alleingültigkeit und werden lediglich unverbindlich zu Informationszwecken zur Verfügung gestellt.
Alle Angaben sind ohne Gewähr und basieren ausschließlich auf Informationen, die uns von unserem Auftraggeber zur Verfügung gestellt wurden. Wir übernehmen keine Gewähr für die Vollständigkeit, Richtigkeit und Aktualität dieser Angaben.
Aus Diskretionsgründen werden hier keine weiteren Angaben zum Objekt und zur Lage gemacht. Ein ausführliches Exposé senden wir Ihnen gerne auf eine vollständig ausgefüllte Anfrage.
Die veröffentlichten Bilder sind Eigentum der Hatz & Team Immobilien GmbH und dürfen nicht weiter vervielfältigt oder anderweitig benutzt werden.
Zum Zeitpunkt der Erstellung des Exposés lag uns noch kein Energieausweis vor. Der Eigentümer ist jedoch verpflichtet dem Käufer oder Mietinteressenten diesen bei der Besichtigung vorzulegen und bei Abschluss des Vertrages zu übergeben.
Es ist immer gut, den Marktwert Ihrer Immobilie zu kennen. Haben Sie vom Immobilienboom profitiert?
Was ist Ihre Immobilie wert? In nur 3 Minuten zum Ergebnis mit unserer Wertermittlung.
Ermitteln Sie den aktuellen Kaufpreis Ihrer Immobilie einfach, schnell und unverbindlich auf unserer Homepage.
Bitte beachten Sie auch unsere weiteren Angebote unter: www.hatz-team.de
Energieausweis (Verbrauchsausweis)
85,30 kWh / (m²*a) Energieverbrauchskennwert
85,30 kWh / (m²*a) Energieverbrauchskennwert
85,30 kWh / (m²*a) Energieverbrauchskennwert
Weitere Informationen
| Wesentlicher Energieträger | GAS |
| Energieausweis gültig bis | 2033-12-16 |
| Energieausweis Jahrgang | ab dem 1.5.2014 |
| Energieausweis Werteklasse | C |
| Energieausweis Baujahr | 1994 |
| Energieausweis Gebäudeart | Wohngebäude |
Ich bin damit einverstanden, dass mir Karten von Google angezeigt werden. Es gelten die Datenschutzbedingungen von Google (https://policies.google.com/privacy).
Ich bin einverstanden