Objektart
Adresse
Objektdaten
Informationen
Ausstattung
Details
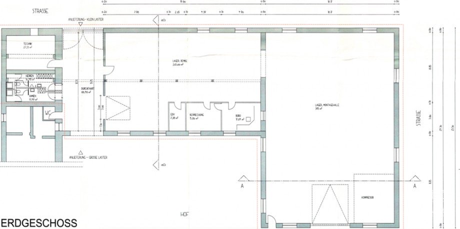
Diese moderne Gewerbeimmobilie in der Gemeinde Aldersbach bietet ideale Voraussetzungen für Produktions-, Lager- oder Logistikbetriebe. Die Immobilie überzeugt durch ihre hochwertige technische Ausstattung, eine durchdachte Raumaufteilung und eine sehr gute Verkehrsanbindung.
Ausstattung im Überblick:
o Zwei große Rolltore, eines davon für LKW-Anlieferung geeignet
o Drei getrennte Büroräume - ideal für Verwaltung, Planung oder Kundenkontakt
o Serverraum mit vorhandener EDV-Verkabelung
o Aufenthaltsraum mit Küche für Mitarbeiterpausen
o Toilettenanlagen vorhanden
o Deckenheizung mit Gastherme (eigener Tank) für effizientes Heizen
o Druckluftleitung vorbereitet, inklusive Kompressor
o Leitungsschächte für Druckluft und Stromanschlüsse in der Halle verlegt
o Rauchmeldeanlage mit Aufschaltung auf eine Sicherheitszentrale
o Alarmanlage und Videoüberwachung für höchste Sicherheit
o Feuerlöscher vollständig installiert
Regalsysteme werden bei Übergabe entfernt, freie Hallenfläche verfügbar
Diese Immobilie vereint Funktionalität mit moderner Technik - ein idealer Standort für Unternehmen, die Wert auf eine gut strukturierte Arbeitsumgebung legen.
Gerne senden wir Ihnen auf Anfrage weitere Unterlagen oder vereinbaren einen Besichtigungstermin.
Weitere Bilder und www.hatz-team.de
Diese moderne Lager- und Produktionshalle befindet sich in der Gemeinde Aldersbach im niederbayerischen Landkreis Passau. Der Standort überzeugt durch seine verkehrsgünstige Anbindung an die Bundesstraßen B8 und B388, wodurch eine schnelle Erreichbarkeit der umliegenden Städte wie Vilshofen, Deggendorf, Passau und Pfarrkirchen gewährleistet ist. Auch die Autobahn A3 ist in rund 20-25 Minuten erreichbar und bietet beste Verbindungen in Richtung Regensburg, München und Österreich.
Das direkte Umfeld ist geprägt von einer Mischung aus produzierendem Gewerbe, Handwerksbetrieben und Lagerflächen - ideale Voraussetzungen für eine gewerbliche Nutzung mit Perspektive. Auch grenzüberschreitende Aktivitäten sind durch die Nähe zur österreichischen Grenze (Raum Schärding/Linz) unkompliziert möglich.
Parkplätze direkt am Objekt sorgen für Komfort bei Anlieferung, Kundenverkehr oder Mitarbeiterbedarf.
Diese Lage verbindet Ruhe und Konzentration auf das Kerngeschäft mit optimaler regionaler wie überregionaler Erreichbarkeit - ein attraktiver Standort für Unternehmen mit Anspruch.
** Die hier eingestellten Angaben sind mit größter Sorgfalt recherchiert, erheben jedoch nicht den Anspruch auf Alleingültigkeit und werden lediglich unverbindlich zu Informationszwecken zur Verfügung gestellt.
Alle Angaben sind ohne Gewähr und basieren ausschließlich auf Informationen, die uns von unserem Auftraggeber zur Verfügung gestellt wurden. Wir übernehmen keine Gewähr für die Vollständigkeit, Richtigkeit und Aktualität dieser Angaben.
Aus Diskretionsgründen werden hier keine weiteren Angaben zum Objekt und zur Lage gemacht. Ein ausführliches Exposé senden wir Ihnen gerne auf eine vollständig ausgefüllte Anfrage.
Die veröffentlichten Bilder sind Eigentum der Hatz & Team Immobilien GmbH und dürfen nicht weiter vervielfältigt oder anderweitig benutzt werden.
Zum Zeitpunkt der Erstellung des Exposés lag uns noch kein Energieausweis vor. Der Eigentümer ist jedoch verpflichtet dem Käufer oder Mietinteressenten diesen bei der Besichtigung vorzulegen und bei Abschluss des Vertrages zu übergeben.
Es ist immer gut, den Marktwert Ihrer Immobilie zu kennen. Haben Sie vom Immobilienboom profitiert?
Was ist Ihre Immobilie wert? In nur 3 Minuten zum Ergebnis mit unserer Wertermittlung.
Ermitteln Sie den aktuellen Kaufpreis Ihrer Immobilie einfach, schnell und unverbindlich auf unserer Homepage.
Bitte beachten Sie auch unsere weiteren Angebote unter: www.hatz-team.de
Ich bin damit einverstanden, dass mir Karten von Google angezeigt werden. Es gelten die Datenschutzbedingungen von Google (https://policies.google.com/privacy).
Ich bin einverstanden